1920 sqft Single Family House
885 Camelia Road, Kelowna

$898,000

Contact Jas to get more detailed information about this property or set up a viewing.
Contact Jas Cell 250 575 4366


Welcome to this great family home with INGROUND POOL & WATERSLIDE nestled on a quiet street, just steps from schools, shopping & local amenities. This property boasts a private, south-facing backyard oasis, featuring a 18x36 pool with a new pump (2025) & a custom-built waterslide for endless summer fun. Outdoor living is elevated by the large yard, a covered deck w/Duradek & sleek glass railings, fiberglass stairs & a new shed, fence & gate. Inside, discover a bright kitchen w/newer appliances & a spacious living/dining room designed for seamless family time. Conveniently located on the main floor are two good sized bedrooms & a full bath. The basement, with three bedrooms, laundry room & full bath, has been thoughtfully enhanced w/double-layer drywall soundproofing & insulation, ensuring a serene environment. Additional features include a brand new HWT, new waterproof vinyl plank flooring in laundry area/hallway, 2019 roof & an oversized 12x27 single garage equipped w/220V workshop, automatic overhead door & a unique rear lift door for backyard access. With ample parking PLUS dedicated RV/Boat parking, this is a rare opportunity to own a spacious home w/pool in a fantastic family-friendly neighbourhood. Within walking distance to Quigley Elementary, Mission Creek & Belgo Parks & Transit. Close to Springvalley Elementary/Middle Schools & Rutland Elementary, Middle & High Schools! (id:6770)

  • Price: $898,000
  • Age: 1971
  • Stories: 1
  • Size: 1920 sqft
  • Bedrooms: 5
  • Bathrooms: 2
  • See Remarks: Spaces
  • Additional Parking: Spaces
  • Attached Garage: 1 Spaces
  • Cooling: Central Air Conditioning
  • Appliances: Refrigerator, Dishwasher, Dryer, Range - Electric, Microwave, Washer
  • Water: Municipal water
  • Sewer: Municipal sewage system
  • Flooring: Carpeted, Linoleum, Vinyl
  • Listing Office: Century 21 Assurance Realty Ltd
  • MLS#: 10381298
  • View: Mountain view, View (panoramic)
  • Fencing: Fence
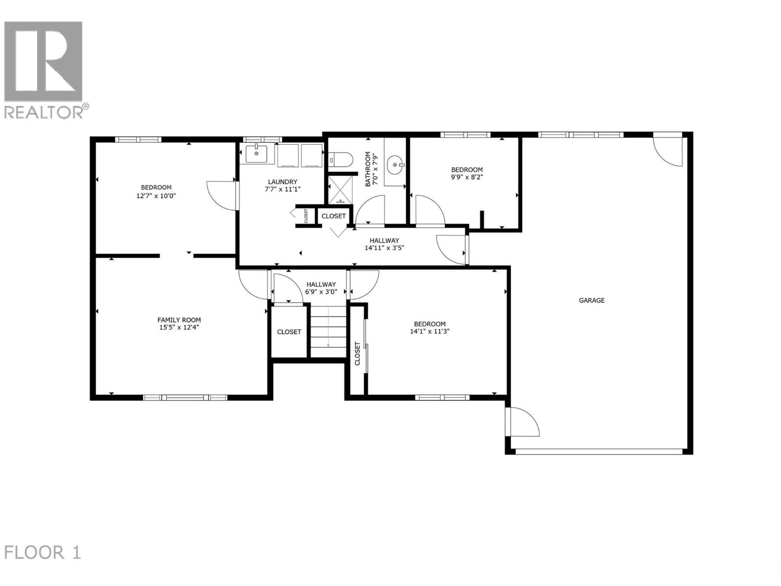
Basement
Laundry room11'1'' x 7'7''
Full bathroom7'9'' x 7'0''
Bedroom9'9'' x 8'2''
Bedroom14'1'' x 11'3''
Family room15'5'' x 12'4''
Main level
Bedroom12'11'' x 9'9''
Primary Bedroom12'8'' x 10'3''
Dining room10'9'' x 9'8''
Kitchen11'0'' x 9'8''
Living room19'10'' x 13'6''