1141 sqft Single Family Row / Townhouse
110 Kalamalka Lake Road Unit# 208, Vernon

$438,000

Contact Jas to get more detailed information about this property or set up a viewing.
Contact Jas Cell 250 575 4366


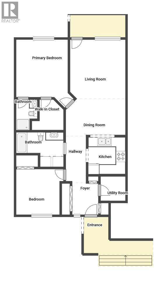
Spacious and bright ground-level 2-bedroom, 2-bathroom condo located in a family-oriented neighbourhood just minutes from Kal Beach! This well-maintained unit offers a functional and comfortable layout, featuring a large living room that opens onto a private deck overlooking Coldstream Creek, creating a peaceful setting to relax and enjoy the natural surroundings. The main bedroom includes a walk-in closet and a private ensuite, while the second bedroom and full bathroom provide flexibility for guests, family, or a home office. The home also features the convenience of in-suite laundry and an oversized bathtub. Perfectly situated for an active Okanagan lifestyle, the condo is just a 10-minute walk to the beach at Kalamalka Lake and only a 6-minute drive to shopping and amenities at Polson Place Mall. It's literally steps away from the Alpine Center, which has a pizzeria, salon, massage, and a fitness gym. The property is also located on a public bike route and transit route, making it easy to get around the city. Whether you’re a first-time buyer, downsizer, or investor, this home offers comfort, convenience, and an unbeatable location close to one of the Okanagan’s most beautiful lakes. (id:6770)

  • Price: $438,000
  • Age: 1993
  • Stories: 1
  • Size: 1141 sqft
  • Bedrooms: 2
  • Bathrooms: 2
  • Exterior: Vinyl siding
  • Cooling: Wall Unit
  • Appliances: Refrigerator, Dishwasher, Range - Electric, Microwave, Washer
  • Water: Municipal water
  • Sewer: Municipal sewage system
  • Flooring: Laminate, Vinyl
  • Listing Office: Royal LePage Downtown Realty
  • MLS#: 10379282
  • View: View (panoramic)
Basement
Living room12'10'' x 13'10''
Dining room8'6'' x 9'1''
3pc Bathroom8'10'' x 8'3''
Other5'8'' x 7'5''
3pc Ensuite bath4'9'' x 4'10''
Primary Bedroom12'0'' x 13'7''
Bedroom10'2'' x 10'8''
Storage5'7'' x 5'10''
Kitchen8'7'' x 8'4''