Single Family House
3514 CASORSO Road, Kelowna

$975,000

Contact Jas to get more detailed information about this property or set up a viewing.
Contact Jas Cell 250 575 4366


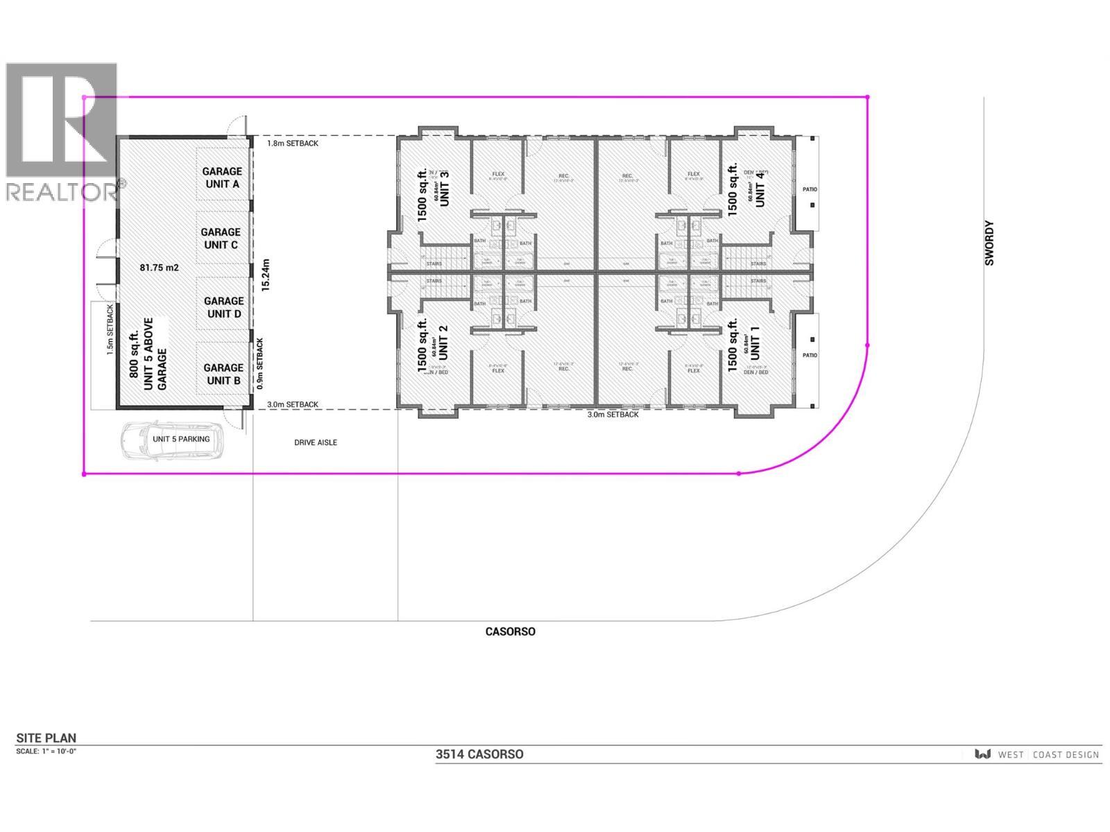
An exceptional land opportunity just steps to Gyro Beach—one of the most coveted pockets of the Lower Mission. Set on a prominent corner lot, this property is all about future potential. The existing structure is not liveable and is currently in the permitting process with the City for demolition and removal, allowing a smooth transition for redevelopment. With impressive frontage, strong visibility, & access from multiple sides, the site provides the foundation for a high-value project. Even more compelling is the possibility for a land assembly with neighbouring Swordy Road properties, expanding the development scope and unlocking additional density options as this corridor continues to transform. This is a rare chance to secure a strategic piece of land in a premier beachside community—minutes to Okanagan Lake, schools, dining, recreation, and the vibrant amenities that define the Lower Mission. Opportunities of this calibre are exceptionally limited. Potential for development and buyers will need to perform their own due diligence to confirm with the city. *House is currently being demolished* (id:6770)

  • Price: $975,000
  • Age: 1970
  • Stories: 1
  • Bedrooms: 1
  • Bathrooms: 1
  • Water: Municipal water
  • Sewer: Municipal sewage system
  • Listing Office: RE/MAX Kelowna - Stone Sisters
  • MLS#: 10370830
  • Landscape Features: Level
Main level
Living room' x '
Primary Bedroom' x '
Kitchen' x '